Характеристики
- Железоотделители применяются на мусороперерабатывающих заводах, при производстве строительных материалов, в пищевой промышленности, на обогатительных фабриках, там где нужно извлечь ферромагнитные включения из потока сыпучих немагнитных материалов, транспортируемых ленточными конвейерами
- Ленточный конвейер
Описание:
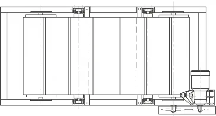
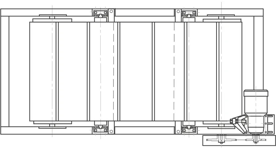
Электромагнитные подвесные железоотделители предназначены для извлечения ферромагнитных предметов из сыпучих материалов, транспортируемых ленточными конвейерами. В своей конструкции имеют систему автоматической очистки, которая удаляет ферромагнитные включения за пределы конвейера в накопитель
Особенности:
- Непрерывный режим работы (ПВ 100%);
- Специальная конструкция магнитопровода обеспечивающая глубокое магнитное поле;
- Катушка электромагнитов изготовлена из высококачественного сертифицированного алюминиевого провода АПСД либо медного провода ПСДК, изготовленного на специализированном предприятии по нашему заказу.
- Качественная изоляция провода значительно снижает вероятность межвиткового замыкания. Это означает, что электромагнитный железоотделитель будет надежно работать на Вашем предприятии длительное время. Также использование данного провода обуславливает высокую ремонтопригодность;
- Высококачественные заливочные и пропиточные компаунды имеют высокий класс нагревостойкости и обладают высокими изоляционными свойствами;
- Применение специалезированых програмных комплексов в процессе разработки позволяет на этапе проектирования смоделировать магнитные поля. Что позволяет оптимизировать изделие и гарантировать выполнение поставленных;
- Механизм вращения ленты железоотделителя состоит из мотор-редуктора производство Италия, Германия.
Выгоды:
- Увеличение срока службы за счет меньшего количества подвижных частей;
- Возможность эксплуатации также в пыльных условиях за счет высокого класса защиты IP65;
- Сокращение эксплуатационных расходов за счет повышения общего коэффициента полезного действия;
- Снижение затрат на техническое обслуживание, т. к. первая замена смазки производится только через 15 000 часов эксплуатации, или через 4 года;
- Сокращение монтажных расходов за счет легкого доступа к болтам;
- Снижение затрат на техническое обслуживание за счет удвоения срока службы тормозных дисков (без регулировки);
- Быстрая замена за счет навесного принципа
Технические характеристики:
|
Наименование |
Габариты АхВхС, мм |
Номинальный ток обмотки при 20°С, А |
Мощность при установившейся температуре, кВт |
Ширина ленты конвейера, мм |
Масса извлекаемых включений, кг |
Глубина зоны извлечения, мм |
Масса, кг |
|
ЭМЖС 065/25 |
2020х1225х750 |
12 |
1,7 |
650 |
0,01-15 |
250 |
1580 |
|
ЭМЖС 065/35 |
2020х1225х780 |
14 |
2,0 |
650 |
0,01-15 |
350 |
1740 |
|
ЭМЖС 080/25 |
2140х1225х680 |
14 |
2,0 |
800 |
0,01-15 |
250 |
1750 |
|
ЭМЖС 080/35 |
2140х1225х700 |
17 |
2,4 |
800 |
0,01-15 |
350 |
1900 |
|
ЭМЖС 100/30 |
2250х1550х640 |
18 |
2,6 |
1000 |
0,01-20 |
300 |
2200 |
|
ЭМЖС 100/40 |
2460х1370х620 |
27 |
3,9 |
1000 |
0,01-20 |
400 |
2400 |
|
ЭМЖС 120/40 |
2470х1580х680 |
34 |
4,9 |
1200 |
0,01-30 |
400 |
3200 |
|
ЭМЖС 120/55 |
2520х1150х710 |
36 |
5,1 |
1200 |
0,01-30 |
550 |
3900 |
|
ЭМЖС 140/40 |
2680х1580х620 |
27 |
3,9 |
1400 |
0,01-35 |
400 |
2900 |
|
ЭМЖС 140/50 |
2680х1580х680 |
34 |
4,9 |
1400 |
0,01-35 |
500 |
3900 |
|
ЭМЖС 140/60 |
2680х1580х750 |
36 |
5,1 |
1400 |
0,01-35 |
600 |
4500 |
|
ЭМЖС 160/40 |
2900х1580х800 |
34 |
4,9 |
1600 |
0,01-35 |
400 |
4000 |
|
ЭМЖС 160/50 |
2900х1580х950 |
36 |
5,1 |
1600 |
0,01-35 |
500 |
4500 |
|
ЭМЖС 160/60 |
2900х1580х1010 |
38 |
5.4 |
1600 |
0,01-35 |
600 |
5300 |
|
ЭМЖС 180/40 |
3100х1580х920 |
34 |
4,9 |
1800 |
0,01-40 |
400 |
4800 |
|
ЭМЖС 180/50 |
3100х1580х1010 |
38 |
5,4 |
1800 |
0,01-40 |
500 |
5700 |
|
ЭМЖС 180/60 |
3100х1580х1200 |
45 |
6,4 |
1800 |
0,01-40 |
600 |
6400 |
|
ЭМЖС 200/40 |
3250х1580х920 |
38 |
5,4 |
2000 |
0,01-40 |
400 |
6000 |
|
ЭМЖС 200/50 |
3250х1580х1100 |
42 |
6,0 |
2000 |
0,01-40 |
500 |
6900 |
|
ЭМЖС 200/60 |
3250х1580х1200 |
47 |
6,7 |
2000 |
0,01-40 |
600 |
7800 |





